Tutvustus
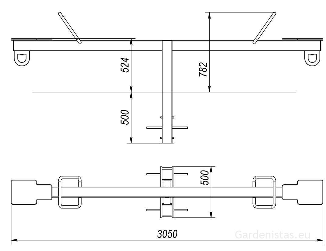
Kaalukiik TE242
Meie poolt pakutavad kaalukiiged on tugevad, kahjustustele vastupidavad ja sobivad ideaalselt meie ilmastikutingimustega.
Sobivad avalikku linnaruumi – parkide, koolide, mänguväljakute, randade või elamurajooni arengusse.
Meil on hea meel aidata teil planeerida oma kohalikku mänguväljakut.
Garantiitingimused.
Toode on paigaldatud vastavalt väljastatud konkreetse toote paigaldusjuhendile.
Toode on hooldatud vastavalt väljastatud kasutus-ja hooldusjuhendile.
Lähemale kui 200m veekogu äärde paigaldatud tootele ei kehti garantii metalldetailidele korrosiooni osas, muust materjalidest detailide garantiiaeg on poole lühem.
Garantii alla kuuluvad toote konstruktsiooni-, materjali- ja tootmisvead.
Garantii alla ei kuulu toote ja selle osade loomulik kulumine, vähene värvimuutus, tuhmumine ja vandalismist tingitud purunemine.
Defektsed detailid vahetab välja ”K-Wooden Production grupp OÜ” esimesel võimalusel!











